Nueva construcción » Apartamento - piso » M
AP Properties Spain
343.300€

Apartamento - piso · Nueva construcción

Mutxamel · Bonalba-cotoveta

343.300€
#APP-R-14875

Apartamento - piso · Nueva construcción

Mutxamel · Bonalba-cotoveta

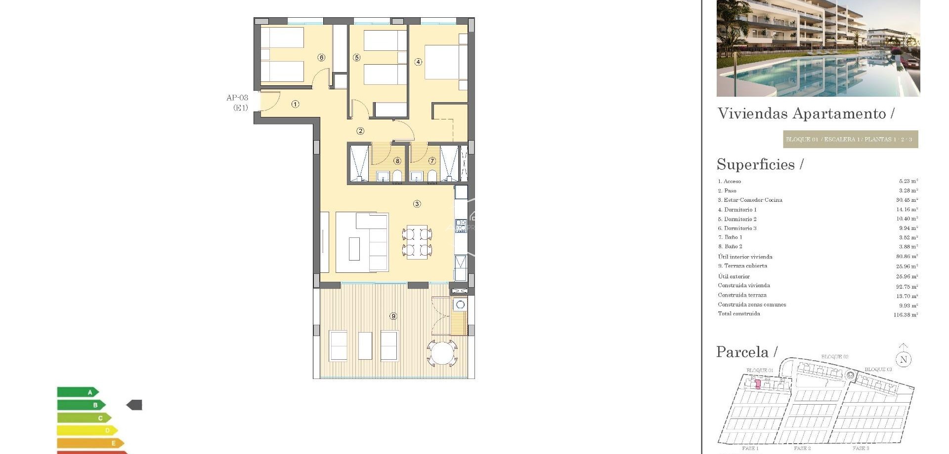
  • Superficie 92m2
  • Habitaciones 3 Habitaciones
  • Baños 2 Baños
  • Piscina Si

Descripción

COMPLEJO RESIDENCIAL DE OBRA NUEVA CERCA DE MUTXAMEL Ven a vivir en un complejo en una zona con una alta calidad de vida, situado en el campo de golf de Bonalba con impresionantes vistas al mar cerca de Mutxamel, a poca distancia del aeropuerto de Alicante, la ciudad de Alicante y las playas.... El complejo residencial dispone de apartamentos de 2 y 3 dormitorios con amplias terrazas, y villas de 2, 3 y 4 dormitorios. Un hogar de ensueño donde creará los mejores recuerdos de su vida. Viviendas exclusivas con todos los servicios necesarios al alcance de la mano. Relájese después de un largo día de trabajo en la piscina del complejo. Cada rincón ha sido desarrollado con atención al detalle. Querrá invitar a amigos y familiares a disfrutar de su espaciosa casa de dos, tres o cuatro dormitorios cada fin de semana. Disfrute de la vida de sus sueños en el complejo: carreras matutinas; un relajante baño en la piscina del complejo; una encantadora comida con amigos y familiares en el Club Social; y una tarde de diversión con los niños en las zonas infantiles. Y todo ello en un entorno exclusivo a pocos pasos de una relajante partida de golf. Ya sea solo, con su mascota o con sus seres queridos, cada rincón que visite está diseñado para proporcionarle confort visual y mantenerle a usted y a los suyos a salvo. Durante sus paseos por las zonas comunes del complejo, podrá encontrar: Una gran fuente acabada en azulejos azules. Una zona junto a la piscina con césped natural. Mobiliario repartido por toda la parcela en el que descansar y contemplar las vistas del complejo. Pequeñas zonas de césped artificial y cerámica en tono madera lustrosa. El complejo está totalmente vallado con video portero para su seguridad y la de los que más le importan. Edificios y arquitectura de gran elegancia y estilo contemporáneo que le cautivarán. Por si disfrutar de un espacio con un estilo impecable no fuera suficiente, tu nuevo hogar junto al campo de golf de Bonalba contará con amplias terrazas equipadas con barandillas de cristal que te permitirán contemplar las vistas al mar con un detalle impecable. Imagínese despertarse cada mañana para enfrentarse al extraordinario amanecer alicantino. Desayune con la mejor luz de España: la luz del Mediterráneo.

Características

Check icon Habitaciones: 3
Check icon Baños: 2
Check icon Construidos: 92m2
Check icon Piscina: Si

Localización

Aneta Jasienowicz

CEO y fundadora

Teléfono +34688704646

Email info@appropertiesspain.com

ESP FR PL

Solicitar información

Responsable del tratamiento: AP Properties Spain, Finalidad del tratamiento: Gestión y control de los servicios ofrecidos a través de la página Web de Servicios inmobiliarios, Envío de información a traves de newsletter y otros, Legitimación: Por consentimiento, Destinatarios: No se cederan los datos, salvo para elaborar contabilidad, Derechos de las personas interesadas: Acceder, rectificar y suprimir los datos, solicitar la portabilidad de los mismos, oponerse altratamiento y solicitar la limitación de éste, Procedencia de los datos: El Propio interesado, Información Adicional: Puede consultarse la información adicional y detallada sobre protección de datos Aquí.
WhatsApp