Nueva construcción » Apartamento - piso » V
AP Properties Spain
543.000€

Apartamento - piso · Nueva construcción

Villajoyosa · Playa del Torres

543.000€
#APP-R-57762

Apartamento - piso · Nueva construcción

Villajoyosa · Playa del Torres

Resort de lujo en Villajoyosa - Un paraíso junto al mar REF# APP-R-57762

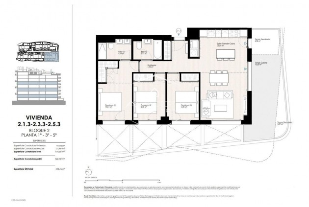
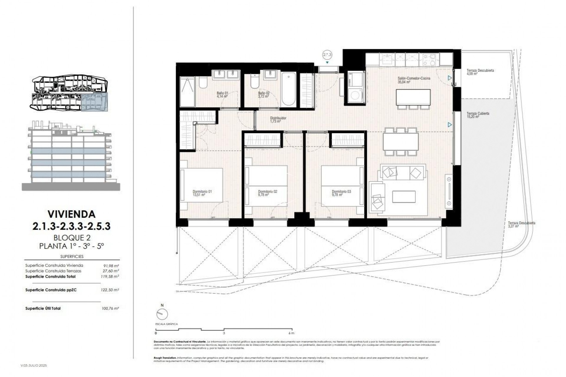
  • Superficie 118m2
  • Habitaciones 3 Habitaciones
  • Baños 2 Baños
  • Piscina Si

Descripción

Resort de lujo en Villajoyosa - Un paraíso junto al mar

Descubra un complejo residencial único en la Playa del Torres
Situado a menos de 5 minutos a pie de la serena Playa del Torres en Villajoyosa, este exclusivo complejo de nueva construcción ofrece 164 modernos apartamentos y áticos de 1 a 3 dormitorios. Diseñada para proporcionar el estilo de vida definitivo, la comunidad combina lujo, relajación y comodidades inigualables en un tranquilo entorno mediterráneo.

Servicios excepcionales para todos los residentes
El corazón de esta urbanización es el Roof Top, situado en la azotea del Bloque 2. Este espacio cuidadosamente diseñado incluye una impresionante piscina con vistas panorámicas, zonas chill-out, una zona de barbacoa, un área multiusos y un cenador, perfecto para socializar o relajarse.
Salón social interior, ideal para cenas gourmet con amigos o como espacio de coworking.
Para los amantes del agua, el complejo cuenta con:
Piscinas de estilo tropical con acceso tipo playa.
Una piscina de carril climatizada, una piscina infantil y un jacuzzi climatizado.
Los entusiastas del fitness pueden disfrutar de:
Gimnasios cubiertos y al aire libre, con un circuito de calistenia.
Un putting green y un minigolf para actividades de ocio.

Viviendas modernas con prestaciones de primera
Cada apartamento está equipado con:
Una cocina totalmente equipada con electrodomésticos de alta calidad, como frigorífico, microondas, horno, lavavajillas y lavadora/secadora integrada.
Sistemas aerotérmicos de bajo consumo para agua caliente y aire acondicionado.
Suelo radiante en los baños.
Ventanas de PVC de alta calidad con aislamiento térmico y doble acristalamiento.
Aparcamiento privado y trastero para mayor comodidad.
El edificio cuenta con calificación energética A, garantizando la máxima eficiencia y sostenibilidad.

Perfecta ubicación en Villajoyosa
Enclavado en la Playa del Torres, este complejo ofrece un refugio tranquilo rodeado de belleza natural. Las aguas cristalinas de la playa y los tonos turquesa proporcionan un telón de fondo idílico para la relajación. La urbanización está convenientemente situada
A 2 km del encantador centro de Villajoyosa.
A 10 km de Benidorm, con su vibrante vida nocturna y comercial.
A 30 minutos en coche del aeropuerto de Alicante.

Villajoyosa, conocida por sus coloridas casas y su rica historia, sigue siendo una auténtica joya mediterránea. Recientemente reconocido como el «Mejor Destino Secreto de Europa 2024» por European Best Destinations, este pueblo mezcla tradición, belleza natural y tranquilidad.

La casa de sus sueños le espera en Playa del Torres
Experimente lo mejor de la vida moderna en un paraíso natural. Con una ubicación privilegiada, lujosas instalaciones y un diseño contemporáneo, esta urbanización es perfecta para quienes buscan un hogar junto al mar. Póngase en contacto con nosotros hoy mismo para concertar una visita y hacer suya esta impresionante propiedad.

Características

Check icon Habitaciones: 3
Check icon Baños: 2
Check icon Construidos: 118m2
Check icon Piscina: Si
Check icon Distancia a la playa: 400 Mts.
Check icon Barbacoa
Check icon Electrodomésticos
Check icon Piscina comunitaria
Check icon Solarium
Check icon Gimnasio
Check icon Iluminación interior
Check icon Iluminación exterior
Check icon Piscina infantil
Check icon Jacuzzi
Check icon Suelo radiante en los baños

Localización

Aneta Jasienowicz

CEO y fundadora

Teléfono +34688704646

Email info@appropertiesspain.com

ESP FR PL

Solicitar información

Responsable del tratamiento: AP Properties Spain, Finalidad del tratamiento: Gestión y control de los servicios ofrecidos a través de la página Web de Servicios inmobiliarios, Envío de información a traves de newsletter y otros, Legitimación: Por consentimiento, Destinatarios: No se cederan los datos, salvo para elaborar contabilidad, Derechos de las personas interesadas: Acceder, rectificar y suprimir los datos, solicitar la portabilidad de los mismos, oponerse altratamiento y solicitar la limitación de éste, Procedencia de los datos: El Propio interesado, Información Adicional: Puede consultarse la información adicional y detallada sobre protección de datos Aquí.
WhatsApp