Nowy budynek » Mieszkanie - Apartament » Vi
AP Properties Spain
515.000€

Mieszkanie - Apartament · Nowy budynek

Villajoyosa · La Tellerola

515.000€
#APP-R-19727

Mieszkanie - Apartament · Nowy budynek

Villajoyosa · La Tellerola

Ekskluzywne apartamenty i penthouse'y nad brzegiem morza w Villajoyosa z panoramicznym widokiem na Morze Śródziemne REF# APP-R-19727

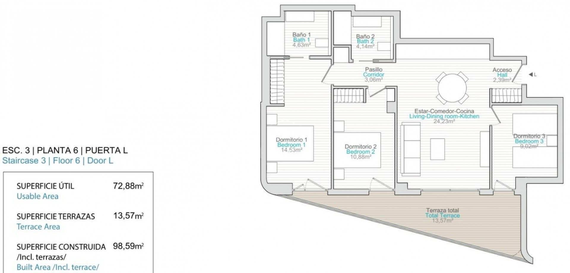
  • Powierzchnia 85m2
  • Sypialnie 3 Sypialnie
  • Łazienki 2 Łazienki
  • Basen Tak

Opis

Ekskluzywne apartamenty i penthouse'y nad brzegiem morza w Villajoyosa z panoramicznym widokiem na Morze Śródziemne

Odkryj tę wyjątkową nową inwestycję mieszkaniową położoną na wzgórzu w popularnej dzielnicy Tellerola w Villajoyosa. Oferująca zapierające dech w piersiach widoki na morze, bezpośredni dostęp do plaży naturalną ścieżką i otoczona dziewiczym śródziemnomorskim krajobrazem, stanowi idealne połączenie spokoju, komfortu i nowoczesnego stylu życia.

Doskonała lokalizacja w Villajoyosa
Położona pomiędzy Playa del Torres i Playa El Tío Roig, ta ogrodzona społeczność cieszy się niezrównaną lokalizacją nad brzegiem morza, pozostając jednocześnie blisko niezbędnych usług i atrakcji rekreacyjnych. Malownicza starówka Villajoyosa znajduje się zaledwie 1,5 km od hotelu, a Benidorm z tętniącym życiem nocnym i sklepami – 10 km, a lotnisko w Alicante – tylko 40 km. Ta idealna lokalizacja zapewnia łatwy dostęp do pól golfowych, marin i atrakcji kulturalnych wzdłuż wybrzeża Costa Blanca.

Eleganckie domy z tarasami z widokiem na morze
Kompleks oferuje apartamenty z 1, 2 i 3 sypialniami oraz penthouse'y, wszystkie zaprojektowane tak, aby maksymalnie wykorzystać naturalne światło i spektakularne widoki na morze. Przestronne tarasy pozwalają cieszyć się śródziemnomorskim klimatem przez cały rok, a wysokiej jakości wykończenia zapewniają zarówno styl, jak i komfort.

Najważniejsze cechy
Okna aluminiowe z przegrodą termiczną i podwójnymi szybami
Zbrojone drzwi wejściowe
Łazienki z lustrami, kabinami prysznicowymi i elektrycznym ogrzewaniem podłogowym
W pełni wyposażone kuchnie ze sprzętem AGD
Klimatyzacja kanałowa w całym budynku
Ciepła woda użytkowa z systemu aerotermicznego
Miejsce parkingowe i schowek w cenie

Najwyższej klasy udogodnienia dla mieszkańców
Mieszkańcy będą mogli korzystać z rozległych ogrodów krajobrazowych, dużego wspólnego basenu, w pełni wyposażonej siłowni i relaksującego spa. Najważniejszym punktem jest ekskluzywny klub towarzyski na dachu z basenem bez krawędzi, oferujący niezrównane panoramiczne widoki na Morze Śródziemne. Kompleks łączy prywatność, bezpieczeństwo i nowoczesny design, tworząc spokojne i wyrafinowane otoczenie.

Villajoyosa – ukryty klejnot Costa Blanca
Niedawno wyróżniona tytułem „Najlepszego Ukrytego Miejsca w Europie 2024” przez European Best Destinations, Villajoyosa słynie z kolorowych domów nad brzegiem morza, uroczej starówki i dziewiczych plaż. Tutaj można zanurzyć się w autentycznym śródziemnomorskim stylu życia, będąc jednocześnie blisko kosmopolitycznych udogodnień.

Odległości do głównych atrakcji:
Centrum Villajoyosa: 1,5 km
Benidorm: 10 km
Lotnisko w Alicante: 40 km
Playa del Torres: 0,2 km
Playa El Tío Roig: 0,4 km
Villaitana Golf: 12 km
Port w Alicante: 35 km

Twój wymarzony dom nad morzem czeka na Ciebie w Villajoyosa. Skontaktuj się z nami już dziś, aby umówić się na oglądanie i zapewnić sobie miejsce w tej wyjątkowej nadmorskiej społeczności.

Szczegóły oferty

Check icon Sypialnie: 3
Check icon Łazienki: 2
Check icon Powierzchnia: 85m2
Check icon Basen: Tak
Check icon Odległość od plaży: 60 Mts.
Check icon Oświetlenie zewnętrzne
Check icon Miejsce parkingowe
Check icon Klimatyzacja
Check icon AGD
Check icon Drzwi antywłamaniowe
Check icon Oświetlenie wewnętrzne

Lokalizacja

Aneta Jasienowicz

Dyrektor generalny i założyciel

Numer telefonu +34688704646

E-mail info@appropertiesspain.com

ESP FR PL

Poproś o informacje

Responsable del tratamiento: AP Properties Spain, Finalidad del tratamiento: Gestión y control de los servicios ofrecidos a través de la página Web de Servicios inmobiliarios, Envío de información a traves de newsletter y otros, Legitimación: Por consentimiento, Destinatarios: No se cederan los datos, salvo para elaborar contabilidad, Derechos de las personas interesadas: Acceder, rectificar y suprimir los datos, solicitar la portabilidad de los mismos, oponerse altratamiento y solicitar la limitación de éste, Procedencia de los datos: El Propio interesado, Información Adicional: Puede consultarse la información adicional y detallada sobre protección de datos Aquí.
WhatsApp