Nieuwbouw Woningen » Villa - Vrijstaand » A
AP Properties Spain
637.000€

Villa - Vrijstaand · Nieuwbouw Woningen

Aspe · Poligono 19

637.000€
#APP-R-48347

Villa - Vrijstaand · Nieuwbouw Woningen

Aspe · Poligono 19

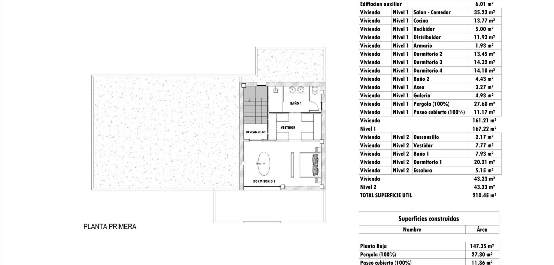
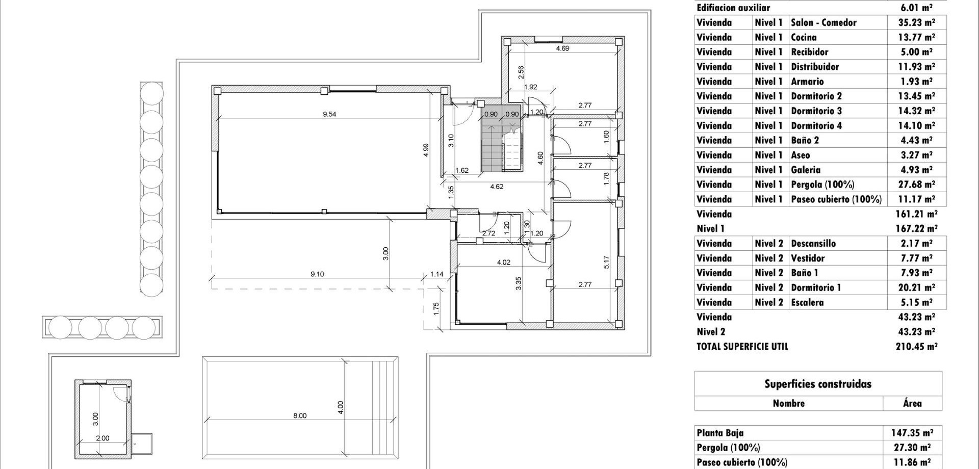
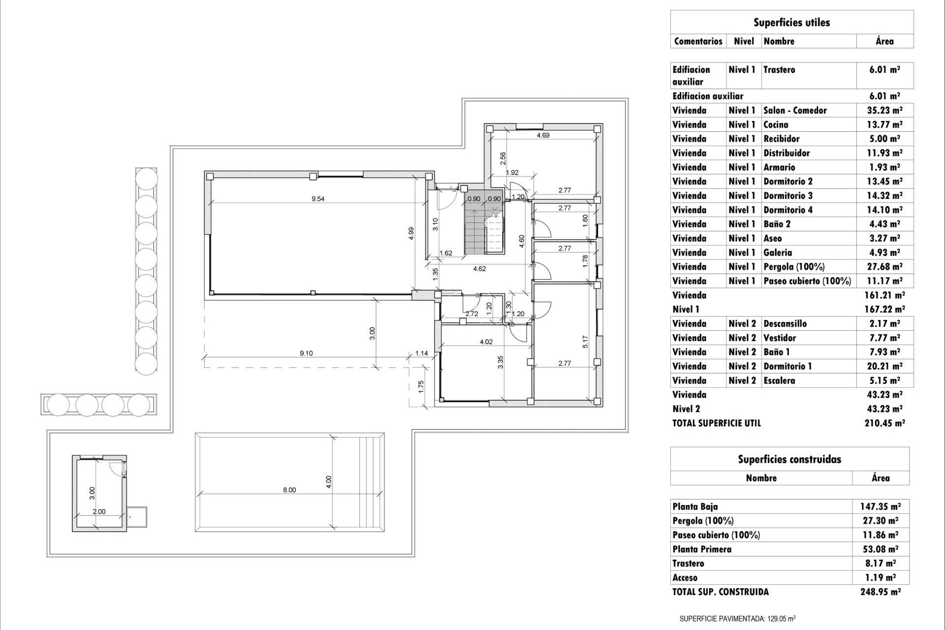
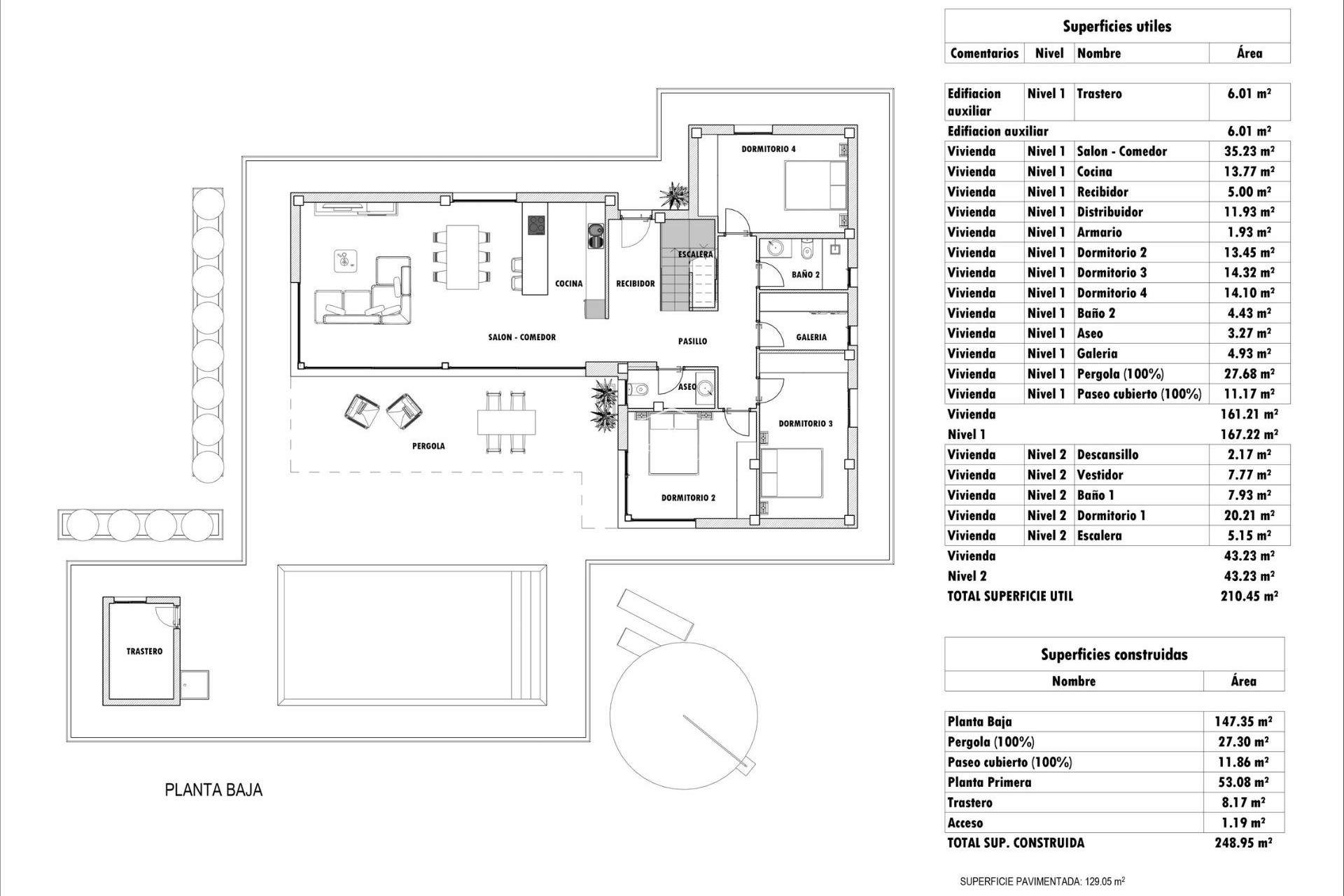
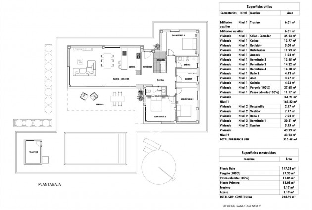
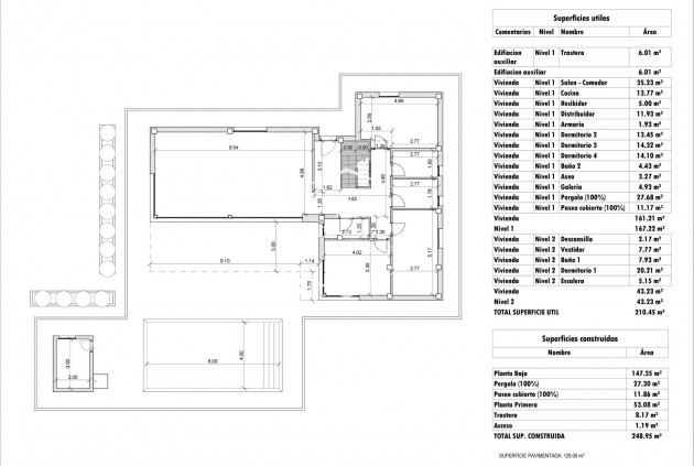
  • Oppervlak 248m2
  • Plot 13.172m2
  • Slaapkamers 4 Slaapkamers
  • Badkamers 3 Badkamers
  • Zwembad Ja

Beschrijving

Nieuwbouwwoningen gelegen in de gemeente Aspe. Nieuwbouwwoningen met verschillende modellen naar keuze met 2, 3 of 4 slaapkamers, met één of twee verdiepingen en gebouwd met platen of met een structuur: afhankelijk van het model en het gekozen perceel wordt de exacte prijs berekend. Alle villa's worden gebouwd op rustieke percelen van meer dan 10.000 m2, waarvan ongeveer 2.500 m2 omheind zal worden. De villa's beschikken over een open keuken met woonkamer, inbouwkasten, privézwembad, veranda, berging en buitenparkeerplaats. Er zijn verschillende percelen beschikbaar. Voor de prijsberekening is uitgegaan van een perceel met een prijs van 77.500 euro (als u een ander perceel kiest, betaalt u het verschil). Het project wordt in eigen beheer uitgevoerd en wordt binnen ongeveer 12 maanden na verlening van de vergunning opgeleverd. Als u op zoek bent naar een rustige omgeving, dicht bij typisch Spaanse dorpjes, ver weg van de toeristische drukte, omgeven door bergen, met een zeer groot perceel en op ongeveer 30 minuten van de zee, dan is dit uw huis. Aspe is een typisch Spaans dorp met alle voorzieningen voor het dagelijks leven, omgeven door bergen en met verschillende natuurgebieden in de omgeving waar u kunt wandelen of mountainbiken. Gelegen op 25 km van het strand, op 9 km van Elche en op ongeveer 20 km van de luchthaven van Alicante.

Kenmerken

Check icon Slaapkamers: 4
Check icon Badkamers: 3
Check icon Gebouwd: 248m2
Check icon Plot: 13.172m2
Check icon Zwembad: Ja

Locatie

Patrick Proesmans

Medeoprichter en directeur

Telefoon +34688705112

E-mail info@appropertiesspain.com

GER ENG ESP FR NL

Vraag voor informatie

Responsable del tratamiento: AP Properties Spain, Finalidad del tratamiento: Gestión y control de los servicios ofrecidos a través de la página Web de Servicios inmobiliarios, Envío de información a traves de newsletter y otros, Legitimación: Por consentimiento, Destinatarios: No se cederan los datos, salvo para elaborar contabilidad, Derechos de las personas interesadas: Acceder, rectificar y suprimir los datos, solicitar la portabilidad de los mismos, oponerse altratamiento y solicitar la limitación de éste, Procedencia de los datos: El Propio interesado, Información Adicional: Puede consultarse la información adicional y detallada sobre protección de datos Aquí.
WhatsApp