Nieuwbouw Woningen » Villa - Vrijstaand » T
AP Properties Spain
700.000€

Villa - Vrijstaand · Nieuwbouw Woningen

Torrevieja · Los Balcones

700.000€
#APP-R-79367

Villa - Vrijstaand · Nieuwbouw Woningen

Torrevieja · Los Balcones

  • Oppervlak 120m2
  • Plot 434m2
  • Slaapkamers 3 Slaapkamers
  • Badkamers 2 Badkamers
  • Zwembad Ja

Beschrijving

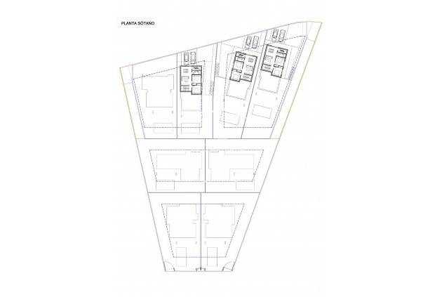
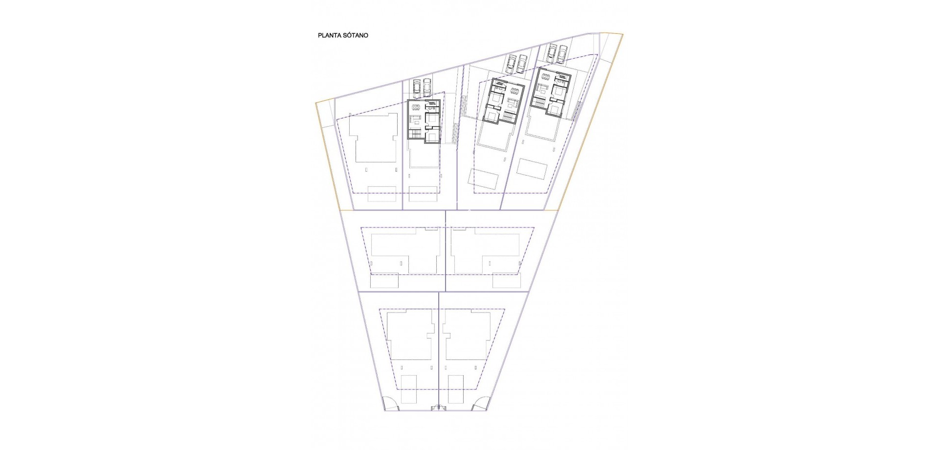
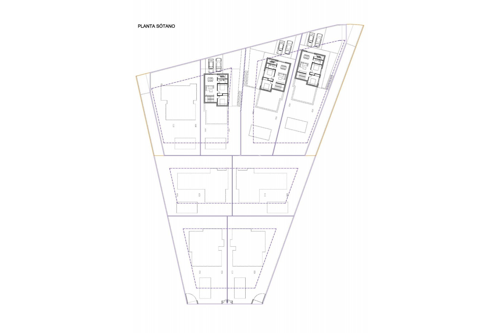
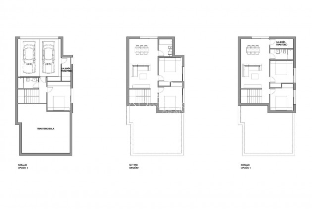
Nieuwbouw gelijkvloerse villa's met privé zwembad in Torrevieja Moderne villa's in de exclusieve wijk Los Balcones Ontdek deze prachtige nieuwbouw villa's, perfect gelegen in de Los Balcones urbanisatie van Torrevieja. Ontworpen voor comfort en elegantie, deze single-verhaal huizen bieden ruime interieurs, hoogwaardige afwerking, en een prive zwembad, waardoor ze de perfecte keuze voor diegenen die op zoek zijn naar een moderne mediterrane levensstijl. Gelegen in een rustige en goed verbonden omgeving, zijn deze villa's omgeven door een breed scala aan diensten, waaronder restaurants, bars, winkelcentra en gezondheidszorg, zorgen voor gemak en een hoge kwaliteit van leven. Ruim en functioneel ontwerp Elk van de 8 onafhankelijke villa's is gebouwd op een royaal perceel van meer dan 400 m², waardoor er voldoende buitenruimte is. De woningen beschikken over: 3 ruime slaapkamers en 2 volledig uitgeruste badkamers. Een grote open woon- en eetkamer, ontworpen voor natuurlijk licht en comfort. Een moderne open keuken, naadloos geïntegreerd in de leefruimte. Privé zwembad, perfect om af te koelen en te entertainen. Parkeerplaats voor twee auto's op het perceel. Prive solarium met open uitzicht, ideaal om te zonnebaden en te ontspannen. Optionele kelder beschikbaar voor extra woon- of opslagruimte (tegen meerprijs). Hoogwaardige functies en afwerkingen Deze villa's zijn gebouwd met eersteklas materialen en ontworpen voor een luxe levensstijl: Vloerverwarming in de badkamers, voor comfort het hele jaar door. Inclusief verlichtingspakket voor meer sfeer en functionaliteit. Een reeks aanpassingsopties, zodat kopers de afwerking aan hun voorkeuren kunnen aanpassen. Toplocatie in de buurt van stranden en diensten Los Balcones is een zeer gewilde woonwijk van Torrevieja, bekend om zijn rustige omgeving en toch dicht bij essentiële voorzieningen. Deze villa's genieten van een uitstekende verbinding met belangrijke locaties: Stranden van Torrevieja - Op slechts 3 km afstand. Internationale luchthaven van Alicante - 40 km (ongeveer 35 minuten rijden). Winkelcentra (La Zenia Boulevard, Habaneras) - 10-15 minuten met de auto. Golfbanen (Villamartín, Las Ramblas, Campoamor) - 15-20 minuten met de auto. Torrevieja centrum - 3 km. Een uitstekende investering en droomhuis Met hun toplocatie, modern design, en premium afwerking, deze villa's bieden een ongelooflijke kans voor investeringen, vakantie of permanente bewoning aan de Costa Blanca. Neem vandaag nog contact met ons op voor meer informatie of om een bezichtiging te plannen!

Kenmerken

Check icon Slaapkamers: 3
Check icon Badkamers: 2
Check icon Gebouwd: 120m2
Check icon Plot: 434m2
Check icon Zwembad: Ja

Locatie

Patrick Proesmans

Medeoprichter en directeur

Telefoon +34688705112

E-mail info@appropertiesspain.com

GER ENG ESP FR NL

Vraag voor informatie

Responsable del tratamiento: AP Properties Spain, Finalidad del tratamiento: Gestión y control de los servicios ofrecidos a través de la página Web de Servicios inmobiliarios, Envío de información a traves de newsletter y otros, Legitimación: Por consentimiento, Destinatarios: No se cederan los datos, salvo para elaborar contabilidad, Derechos de las personas interesadas: Acceder, rectificar y suprimir los datos, solicitar la portabilidad de los mismos, oponerse altratamiento y solicitar la limitación de éste, Procedencia de los datos: El Propio interesado, Información Adicional: Puede consultarse la información adicional y detallada sobre protección de datos Aquí.
WhatsApp