Nieuwbouw Woningen » Appartement- flat » To
AP Properties Spain
310.000€

Appartement- flat · Nieuwbouw Woningen

Torrevieja · La Hoya

310.000€
#APP-R-19044

Appartement- flat · Nieuwbouw Woningen

Torrevieja · La Hoya

Moderne nieuwbouwappartementen in La Hoya, Torrevieja REF# APP-R-19044

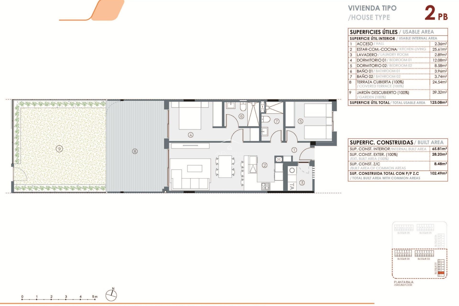
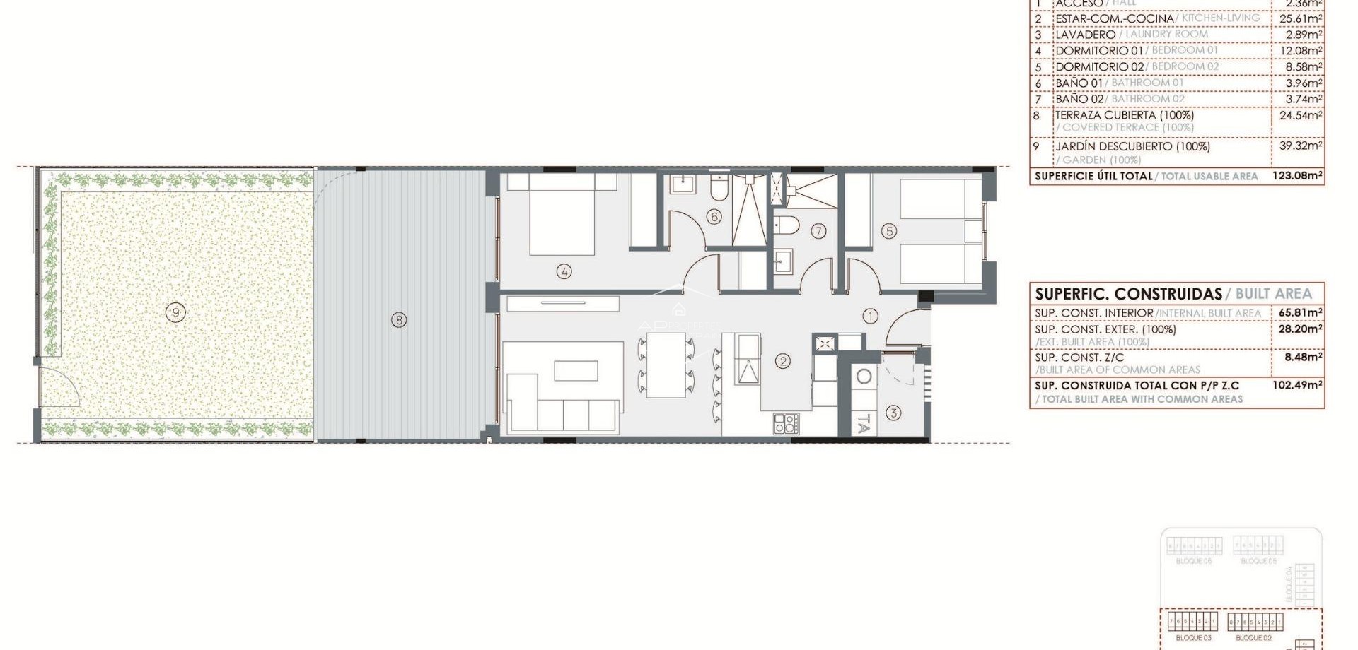
  • Oppervlak 65m2
  • Plot 39m2
  • Slaapkamers 2 Slaapkamers
  • Badkamers 2 Badkamers
  • Zwembad Ja

Beschrijving

Moderne nieuwbouwappartementen in La Hoya, Torrevieja

Eigentijdse woningen met eersteklas voorzieningen
Ontdek dit uitzonderlijke nieuwe woonproject in La Hoya, Torrevieja, met moderne appartementen met 2 en 3 slaapkamers, 2 badkamers, waarvan één ensuite, en een aparte wasruimte. Het complex is ontworpen met het oog op comfort en stijl en bestaat uit laagbouwgebouwen rondom een indrukwekkende gemeenschappelijke ruimte. Bewoners kunnen genieten van uitstekende gemeenschappelijke voorzieningen, waaronder zwembaden voor volwassenen en kinderen, aangelegde tuinen, een kinderspeelplaats, binnen- en buitenfitnessruimtes, padelbanen, fietsenstallingen en een complete spa met sauna.

Kies de woning die bij uw levensstijl past
Het project biedt verschillende soorten woningen voor verschillende voorkeuren. De appartementen op de begane grond hebben een eigen tuin die ideaal is om buiten te leven. De appartementen op de middelste verdiepingen hebben royale terrassen die perfect zijn om buiten te ontspannen of te dineren. Penthouse-appartementen bieden ultieme luxe met een eigen dakterras waar u kunt genieten van het mediterrane klimaat en een panoramisch uitzicht.

Toplocatie tussen zoutmeren en de zee
La Hoya is een groeiende woonwijk, ideaal gelegen tussen de natuurlijke zoutmeren van La Mata en Torrevieja. Deze rustige en goed bereikbare wijk biedt snelle toegang tot alle essentiële voorzieningen, zoals supermarkten, restaurants, gezondheidscentra en fietsroutes. De prachtige stranden van Torrevieja liggen op slechts 3,5 km afstand, terwijl het nabijgelegen natuurpark van La Mata perfect is voor wandelingen en buitenactiviteiten. Het bruisende centrum van Torrevieja, met theaters, winkelcentra, bioscopen, ziekenhuizen en het waterpark Aquopolis, ligt op slechts een klein eindje rijden.

Afstanden tot belangrijke bezienswaardigheden
Stranden van Torrevieja: 3,5 km
Golf La Marquesa, Ciudad Quesada: 7 km
Winkelcentrum Habaneras: 2 km
Luchthaven Alicante: 40 km
Luchthaven Murcia Corvera: 60 km

Hoogwaardige specificaties inbegrepen
Elk appartement is gebouwd volgens uitstekende normen en is voorzien van moderne afwerkingen die zijn ontworpen voor maximaal comfort:
Volledig ingerichte keukens
Aerothermisch warmwatersysteem
Voorbereiding voor airconditioning.
Ondergrondse parkeerplaats en berging inbegrepen

Geniet van de mediterrane levensstijl
Met meer dan 300 zonnige dagen per jaar, prachtige stranden, levendige promenades en een breed scala aan culturele en recreatieve activiteiten biedt Torrevieja een van de meest aantrekkelijke levensstijlen aan de Costa Blanca. Of u nu op zoek bent naar een permanente woning, een vakantieverblijf of een sterke investeringsmogelijkheid, dit nieuwe project voldoet aan alle verwachtingen.

Uw nieuwe huis wacht op u in Torrevieja
Neem vandaag nog contact met ons op om een bezichtiging te plannen en uw ideale woning in deze uitzonderlijke woonwijk te bemachtigen.

Kenmerken

Check icon Slaapkamers: 2
Check icon Badkamers: 2
Check icon Gebouwd: 65m2
Check icon Plot: 39m2
Check icon Zwembad: Ja
Check icon Afstand naar het strand: 3500 Mts.
Check icon Kids zone
Check icon Binnenverlichting
Check icon Buitenverlichting
Check icon Parkeerplaats
Check icon Airconditioning pre-installatie
Check icon Solarium
Check icon Terras
Check icon Fitness

Locatie

Patrick Proesmans

Medeoprichter en directeur

Telefoon +34688705112

E-mail info@appropertiesspain.com

GER ENG ESP FR NL

Vraag voor informatie

Responsable del tratamiento: AP Properties Spain, Finalidad del tratamiento: Gestión y control de los servicios ofrecidos a través de la página Web de Servicios inmobiliarios, Envío de información a traves de newsletter y otros, Legitimación: Por consentimiento, Destinatarios: No se cederan los datos, salvo para elaborar contabilidad, Derechos de las personas interesadas: Acceder, rectificar y suprimir los datos, solicitar la portabilidad de los mismos, oponerse altratamiento y solicitar la limitación de éste, Procedencia de los datos: El Propio interesado, Información Adicional: Puede consultarse la información adicional y detallada sobre protección de datos Aquí.
WhatsApp