New Build » Villa - Detached » La Romana &r
AP Properties Spain
378.000€

Villa - Detached · New Build

La Romana · Batistes

378.000€
#APP-R-54551

Villa - Detached · New Build

La Romana · Batistes

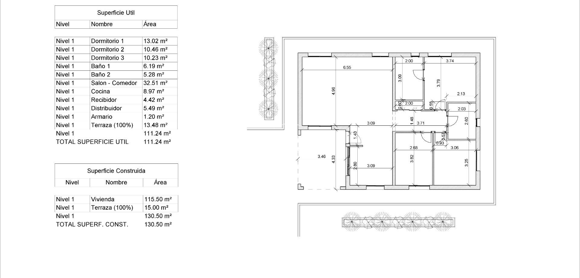
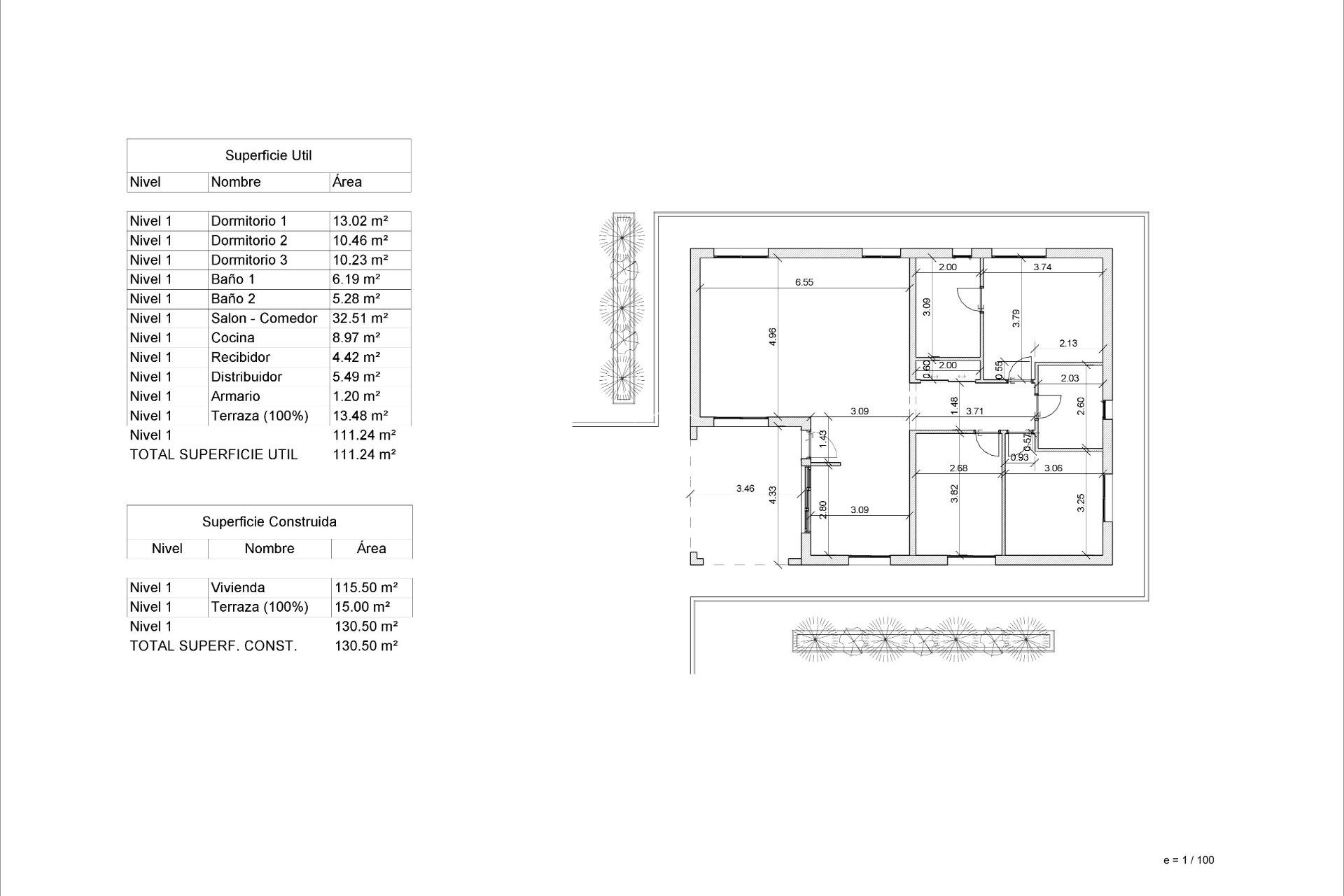
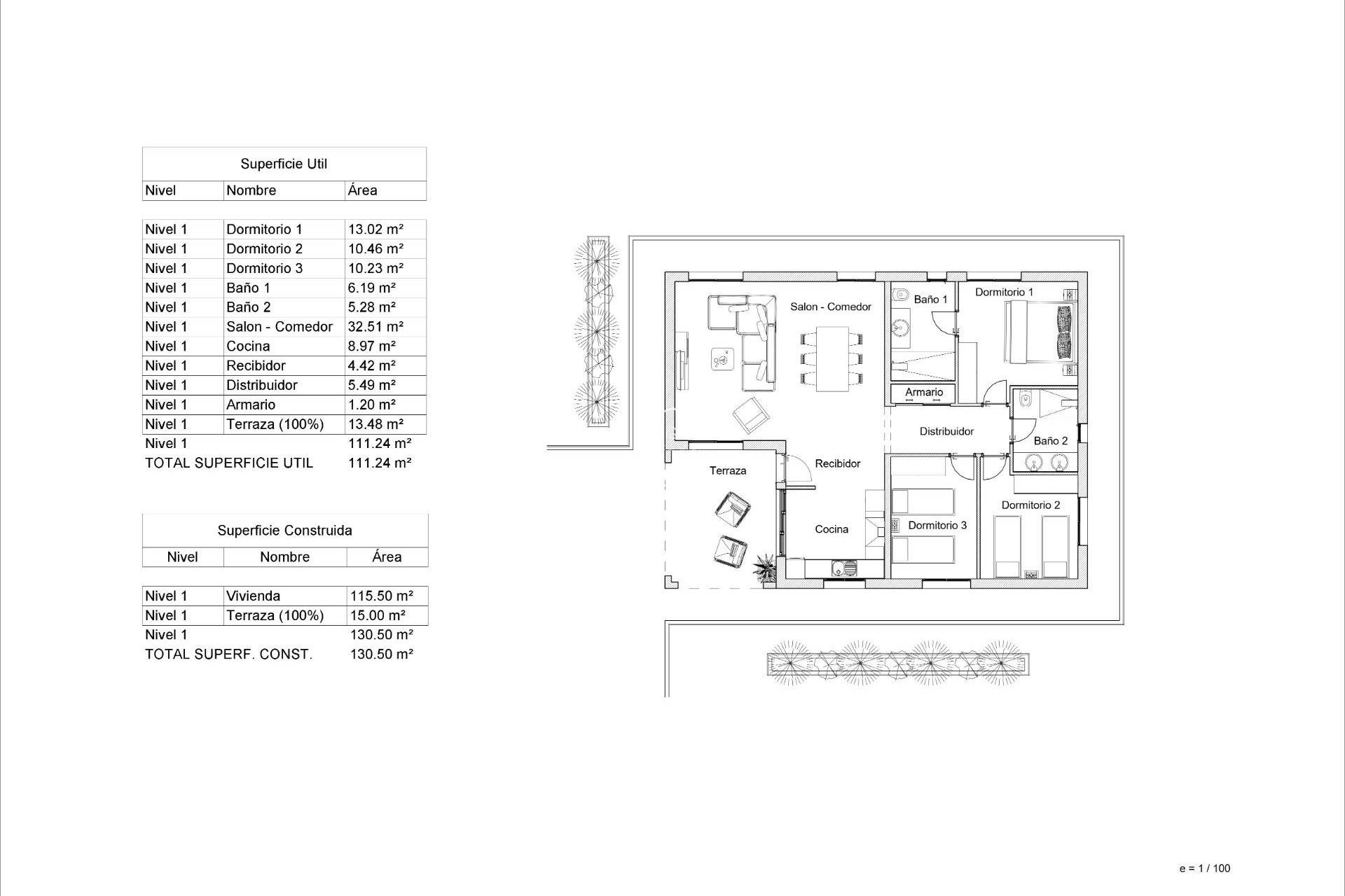
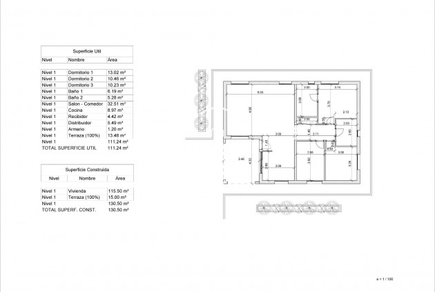
  • Surface 130m2
  • Plot 10.227m2
  • Bedrooms 3 Bedrooms
  • Bathrooms 2 Bathrooms
  • Pool Yes

Description

Newly built villas located in La Romana.

Newly built villas with several models to choose from, with 2 or 3 bedrooms, one or two floors, and built with slabs or a frame structure. The exact price will be calculated depending on the model and plot chosen.

All villas are built on rustic plots of over 10,000 m2, of which 2,500 m2 will be fenced.

The villas have an open-plan kitchen with living room, fitted wardrobes, private swimming pool, porch and outdoor parking space.

There are several plots to choose from. The price has been calculated based on a plot priced at £55,000 (if another plot is chosen, the difference will be paid according to the price of the plot).

Self-build project, delivery in approximately 12 months from the granting of the licence.

If you are looking for a peaceful setting, close to typical Spanish villages away from mass tourism, surrounded by mountains, with a very large plot and about 30 minutes from the sea, this is your home.

La Romana is a typical Spanish village with all the amenities you need for everyday life, surrounded by mountains and with several natural areas nearby where you can go hiking or mountain biking.

Located 30 minutes from Alicante airport.

Features

Check icon Bedrooms: 3
Check icon Bathrooms: 2
Check icon Built: 130m2
Check icon Plot: 10.227m2
Check icon Pool: Yes

Location

Patrick Proesmans

Co-Founder & Director

Phone +34688705112

E-mail info@appropertiesspain.com

GER ENG ESP FR NL

Ask for information

Responsable del tratamiento: AP Properties Spain, Finalidad del tratamiento: Gestión y control de los servicios ofrecidos a través de la página Web de Servicios inmobiliarios, Envío de información a traves de newsletter y otros, Legitimación: Por consentimiento, Destinatarios: No se cederan los datos, salvo para elaborar contabilidad, Derechos de las personas interesadas: Acceder, rectificar y suprimir los datos, solicitar la portabilidad de los mismos, oponerse altratamiento y solicitar la limitación de éste, Procedencia de los datos: El Propio interesado, Información Adicional: Puede consultarse la información adicional y detallada sobre protección de datos Aquí.
WhatsApp